
| 所在地 | 新潟県新潟市中央区川端町1丁目5-1 |
|---|---|
| 交通 | 新潟交通「川端町二丁目」バス停徒歩約2分 新潟交通「上大川前通二番町」バス停徒歩約3分 JR東日本「白山」駅徒歩約20分 |
| 価格 | 3,680万円 |
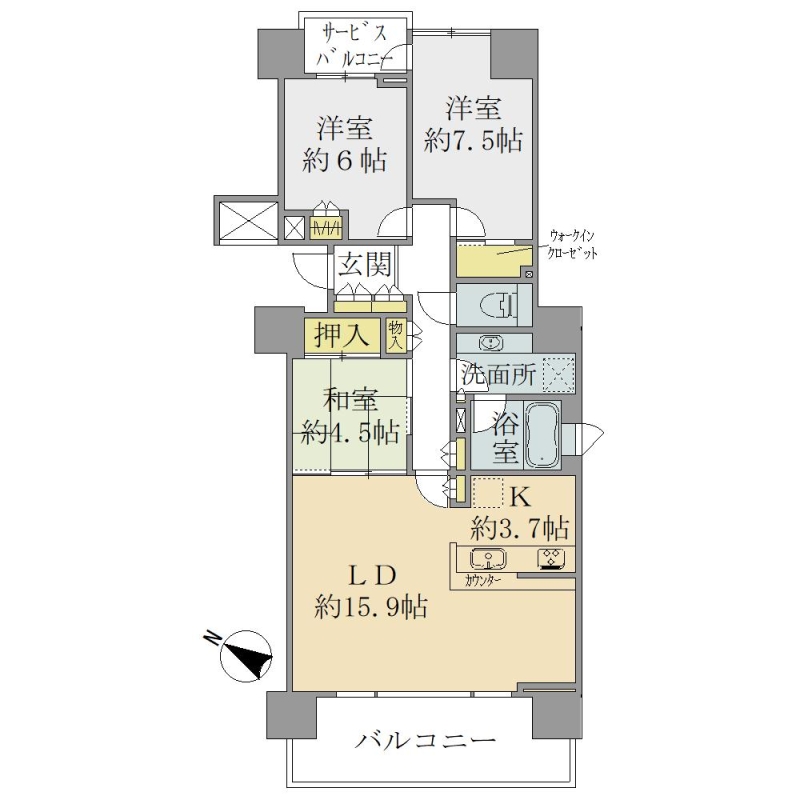
| 間取り | 3LDK |
| 専有面積 | 87.24m² |
| バルコニー面積 | 12.71m² |
| バルコニー向き | 南西 |
| 竣工年月 | 2009年4月 |
| 構造 | 鉄筋コンクリート(RC)造 |
| 階建 | 14階建 |
| 所在階 | 10階 |
| 規模 | 153戸 |
| 管理会社 | 日本ハウズイング株式会社 |
| 管理費 | 15,284円/月 |
|---|---|
| 修繕積立費 | 18,620円/月 |
| その他使用料 | タイヤストッカー 500円/月 駐車場 11,000~16,000円/月 ※空要確認 駐輪場 100~200円/月 ミニバイク置場 1,000円/月 ※空要確認 |
| 電気 | 東北電力 |
| ガス | |
| 水道 | 公営水道 |
| 雑排水 | 公共下水 |
| 汚水 | 公共下水 |
| 現況 | 空室 |
| 引渡可能日 | 即入居可能 |
| 取引態様 | 専任媒介(仲介) |
| 土地権利 | 所有権 |
| 最新物件確認日 | 2025年5月26日 |
| 備考 | ※オール電化マンション ※2026年に大規模修繕工事の実施を検討中です。 ※修繕積立金の値上げが検討されています。 ※2029年に修繕積立基金の徴収が予定されています。 |
|---|
![]()
![]()
![]()
![]()
![]()
![]()
![]()
![]()
![]()
![]()
![]()
![]()
![]()
![]()
![]()
![]()
![]()
![]()
![]()
![]()