
| 所在地 | 新潟県新潟市中央区幸西4丁目5-8 |
|---|---|
| 交通 | 新潟交通「新潟LOTS」バス停徒歩約4分 新潟交通「新潟万代病院前」バス停徒歩約5分 JR東日本「新潟」駅徒歩約18分 |
| 価格 | 4,030万円 |
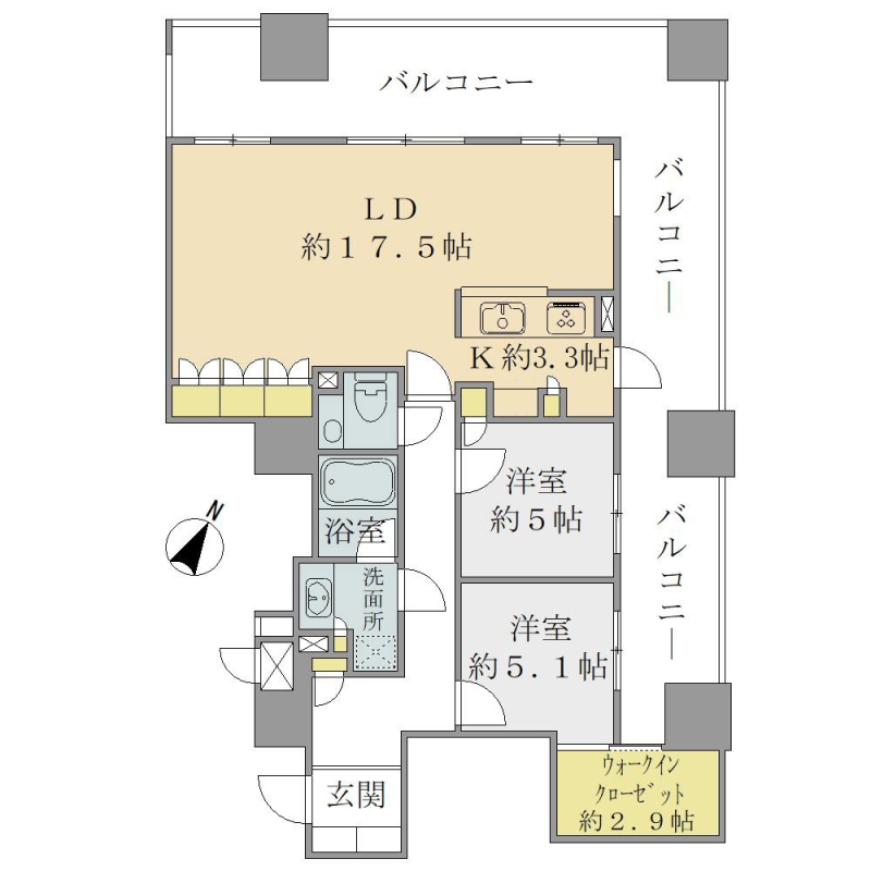
| 間取り | 2LDK |
| 専有面積 | 78.89m² |
| バルコニー面積 | 38.43m² |
| バルコニー向き | 北東 |
| トランク面積 | 1.58m² |
| 竣工年月 | 2006年1月 |
| 構造 | 鉄筋コンクリート(RC)造 |
| 階建 | 19階建/地下1階 |
| 所在階 | 14階 |
| 規模 | 52戸 |
| 管理会社 | 株式会社東急コミュニティー |
| 管理費 | 18,930円/月 |
|---|---|
| 修繕積立費 | 20,000円/月 |
| その他使用料 | 駐車場 15,000円/月 ※空要確認 駐輪場 1住戸1区画無料 バイク置場 1,000円/月 自治会費 100円/月 夜間巡回警備料 1,390円/月 CATV使用料 500円/月 |
| 電気 | 東北電力 |
| ガス | 北陸ガス |
| 水道 | 公営水道 |
| 雑排水 | 公共下水 |
| 汚水 | 公共下水 |
| 現況 | 空室 |
| 引渡可能日 | 即入居可能 |
| 取引態様 | 一般媒介(仲介) |
| 土地権利 | 所有権 |
| 最新物件確認日 | 2025年11月11日 |
| 備考 | ※棟外所有者の場合、管理組合活動協力金が別途1,000円/月徴収されます。 ■全室バルコニーに面する眺望良好な角住戸。 ■広い開口部で開放的なリビングルームは風通しの良い2面採光です。 ■リビングにはワイドで使いやすいクローゼット。棚の高さを変えられるので収納力UP! ■L型バルコニーからは信濃川が見え眺望良好。 ■各フロアにゴミ庫あり!24時間ゴミ捨てが可能です。 ■天候に左右されないホテルのような快適な内廊下仕様。 ■万代シティが徒歩圏内。バスも多く出ているエリアです。 ■新潟交通「新潟LOTS」バス停 徒歩約4分 ■JR「新潟」駅 徒歩約18分 ■南万代小学校 徒歩約5分 ■宮浦中学校 徒歩約20分 お気軽にお問い合わせください♪ |
|---|
![]()
![]()
![]()
![]()
![]()
![]()
![]()
![]()
![]()
![]()
![]()
![]()