受付時間 8:30-17:30
休業日ご案内
マンション情報検索
Mansion Search
日生不動産販売の強み
Our strength
住み替えFAQ
Removal FAQ
お役立ち情報
Useful Information
マンションの魅力
Mansion Charm
企業情報
お問い合わせ
サイトマップ
HOME
日生不動産の既分譲マンション販売物件特集
ライズ
1
件中
1〜1件表示
1
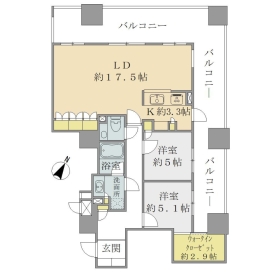
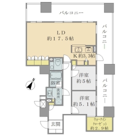
ライズ万代タワー
中古マンション
販売中
所在地
新潟県新潟市中央区幸西4丁目5-8
間取り
2LDK
所在階
14階 /19階建
専有面積
78.89m²
竣工年月
2006年1月
価格:
4,030
万円
1
件中
1〜1件表示
1
▲