
| 所在地 | 新潟県新潟市中央区川端町1丁目5-1 |
|---|---|
| 交通 | 新潟交通「川端町二丁目」バス停徒歩約2分 新潟交通「上大川前通二番町」バス停徒歩約3分 JR東日本「白山」駅徒歩約20分 |
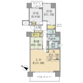
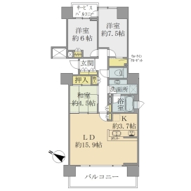
| 専有面積 | 88.16m² |
| バルコニー面積 | 12.80m² |
| バルコニー向き | 南東 |
| 竣工年月 | 2009年4月 |
| 構造 | 鉄筋コンクリート(RC)造 |
| 階建 | 14階建 |
| 規模 | 153戸 |
| 管理会社 | 日本ハウズイング株式会社 |
| 電気 | 東北電力 |
|---|---|
| ガス | |
| 水道 | 公営水道 |
| 雑排水 | 公共下水 |
| 汚水 | 公共下水 |
| 土地権利 | 所有権 |
| 備考 | ※オール電化マンション ※2026年に大規模修繕工事の実施を検討中です。 ※修繕積立金の値上げが検討されています。 ※2029年に修繕積立基金の徴収が予定されています。 |
|---|
![]()
![]()
![]()
![]()
![]()
![]()
![]()
![]()
![]()
![]()
![]()
![]()
![]()
![]()